3 Bedroom Detached For Sale   |   Washerwall Lane, Werrington, Stoke On Trent, ST9 0LR   |   Offers in Region of £330,000

Virtual Tour

Key Features

  • EPC rated D
  • Well presented home
  • Ideal for families
  • No onward chain
  • Ensuite to master bedroom
  • Useful utility and downstairs w/c
  • Summer House
  • Off road parking
  • Sought after location
  • Viewing advised

Summary

Feeney estate agents are thrilled to bring to market this much loved family home situated in the popular residential area of Werrington in the highly regarded Staffordshire Moorlands. Washerwall Lane offers a well presented home, ready to be moved straight into and start making it your own. On offer internally, a convenient porchway, leading to a spacious kitchen / diner and lounge area complete with Belfast sink, Granite tops and French doors to the laid to lawn garden. This floor also benefits from a useful utility room and downstairs w/c. The main lounge benefits a multifuel burner and wooden staircase off. To the first floor there are three good sized bedrooms all with laminate flooring and an ensuite to the master bedroom. The floor is completed with a stylish bathroom with a slipper bath and shower cubicle. The home offers off road parking to the side and a lovely laid to lawn garden area with patio seating space and a versatile summer house, perfect for summer evenings. This home is going to be snapped up quickly, so call today to book your early viewing.

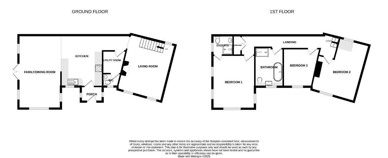
Ground Floor

Porch

5' 10'' x 3' 7'' (1.8m x 1.1m) Door to front elevation and double glazed window to side elevation. Tiled flooring.

Lounge

12' 5'' x 15' 8'' (3.8m x 4.8m) Two double glazed window to front elevation and a double glazed window to the rear elevation. Multi fuel burner. Wood flooring, power points and a wall mounted radiator.

Kitchen / Dining Room

19' 4'' x 22' 11'' (5.9m x 7m) Double glazed windows to front and side elevations. French doors to rear elevation. Granite work surfaces with a Belfast sink. A range of matching wall and base units. Spot lighting. Extractor fan. Tiled flooring, power points and three wall mounted radiators.

Utility

5' 10'' x 5' 2'' (1.8m x 1.6m) Door to w/c. Plumbing for a washing machine. Cloak hooks. Tiled flooring and power points.

W/C

3' 3'' x 3' 7'' (1m x 1.1m) Double glazed frosted window to front elevation. Wall mounted hand wash basin with low level w/c. Tiled flooring and a wall mounted radiator.

First Floor

First Floor Landing

Store cupboard housing boiler. Laminate flooring, power points and a wall mounted radiator.

Bedroom One

11' 1'' x 14' 1'' (3.4m x 4.3m) Two double glazed windows to side elevation. Laminate flooring, power points and a wall mounted radiator.

Ensuite

5' 2'' x 5' 2'' (1.6m x 1.6m) Double glazed window to side elevation. Wall mounted hand wash basin with low level w/c. Shower cubical. Laminate flooring and a heated towel rail.

Bedroom Two

15' 4'' x 12' 1'' (4.7m x 3.7m) Double glazed windows to rear and front elevations. Laminate flooring, power points and a wall mounted radiator.

Bedroom Three

10' 5'' x 9' 2'' (3.2m x 2.8m) Double glazed window to front elevation. Laminate flooring, power points and a wall mounted radiator.

Bathroom

7' 2'' x 9' 6'' (2.2m x 2.9m) Double glazed frosted window to front elevation. Wall mounted hand wash basin with low level w/c. Slipper bath with waterfall shower. Spot lighting. Loft access. Tiled flooring and a wall mounted radiator.

Exterior

Exterior

A paved driveway to the front. To the side a laid to lawn garden, patio area, shrubbed boarders and a summer house.

Energy Efficiency

EPC Graph

Additional Information

For further information on this property please call 07387027568 or e-mail home@feeneyestateagents.co.uk

Contact Us

123 High Street, High Town, HH1 1HH

07387027568

home@feeneyestateagents.co.uk


Key Features

  • EPC rated D
  • Ideal for families
  • Ensuite to master bedroom
  • Summer House
  • Sought after location
  • Well presented home
  • No onward chain
  • Useful utility and downstairs w/c
  • Off road parking
  • Viewing advised

Share this property

Property Search

Share this property