3 Bedroom Semi-Detached For Sale   |   Belgrave Road, Dresden, Stoke On Trent, ST3 4NL   |   Offers in Region of £220,000

Virtual Tour

Key Features

  • EPC rating C
  • Great family home
  • Huge amounts of potential
  • Conservatory
  • Downstairs W/C
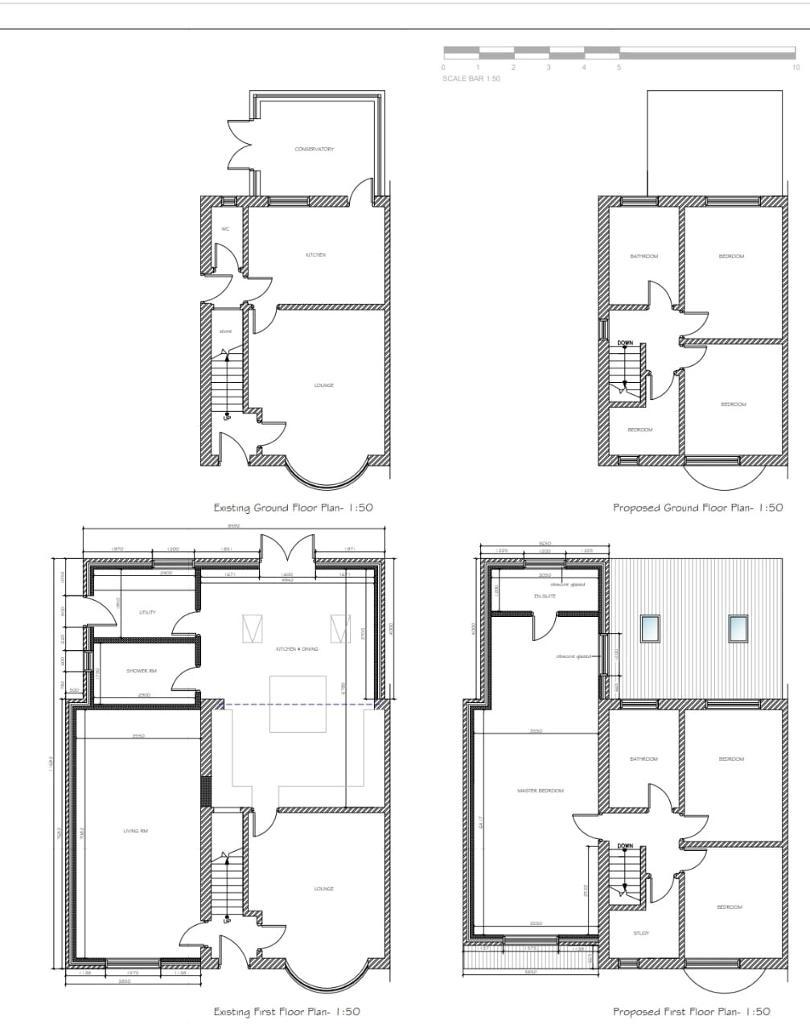
  • Plans submitted for side extension
  • Planning permission for rear extension
  • Close to local amenities
  • Convenient location
  • Viewings advised

Summary

Feeney estate agents are thrilled to bring to market this much loved family home situated in the most convenient of locations of Dresden in Staffordshire. Belgrave Road is a three bedroom semi detached home looking for new owners to put their own stamp on. With the added addition of planning permission for a rear extension and plans submitted for a two storey side extension, this home is going to be snapped up quickly and is perfect for any growing family. Internally on offer, a lounge with bay window, kitchen with an array of fitted wall and base units and conservatory perfect for those summer evenings. The floor is completed by a convenient downstairs w/c. To the first floor there are three good sized bedrooms, all with carpet flooring and a separate family bathroom with white suite. With off road parking to the side and a low maintenance rear yard, what more could you ask for? Call today to book your early viewing.

Ground Floor

Entrance Hall

Door to front elevation. Carpet flooring and a wall mounted radiator.

Lounge

12' 5'' x 16' 4'' (3.8m x 5m) Double glazed bay window to front elevation. Electric fire. Carpet flooring, power points and a wall mounted radiator.

Kitchen

8' 10'' x 12' 5'' (2.7m x 3.8m) Double glazed window to rear elevation. Roll top work surfaces with a sink, drainer and mixer tap. A range of matching wall and base units. Plumbing for a washing machine. Tiled flooring, power points and a wall mounted radiator.

Conservatory

12' 5'' x 9' 2'' (3.8m x 2.8m) French doors to side elevation. Laminate flooring, power points and a wall mounted radiator.

Side Porch

Door to side elevation. Under stairs storage.

W/C

2' 7'' x 5' 6'' (0.8m x 1.7m) Double glazed frosted window to rear elevation. Low level w/c. Tiled flooring and a wall mounted radiator.

First Floor

First Floor Landing

Double glazed window to side elevation. Loft access.

Bedroom One

12' 5'' x 8' 10'' (3.8m x 2.7m) Double glazed window to rear elevation. Carpet flooring, power points and a wall mounted radiator.

Bedroom Two

8' 10'' x 10' 9'' (2.7m x 3.3m) Double glazed window to front elevation. Carpet flooring, power points and a wall mounted radiator.

Bedroom Three

4' 3'' x 6' 6'' (1.3m x 2m) Double glazed window to front elevation. Carpet flooring, power points and a wall mounted radiator.

Bathroom

6' 6'' x 8' 10'' (2m x 2.7m) Double glazed window to rear elevation. Pedestal wash hand basin with low level w/c and bidet. Bath. Fully tiled walls. Laminate flooring and a heated towel rail.

Exterior

Exterior

To the front, decorative slate and to the rear, a paved yard. The driveway to the side has planning permission granted for a 6m extension and plans for a 2 story extension.

Energy Efficiency

EPC Graph

Additional Information

For further information on this property please call 07387027568 or e-mail home@feeneyestateagents.co.uk

Contact Us

123 High Street, High Town, HH1 1HH

07387027568

home@feeneyestateagents.co.uk


Key Features

  • EPC rating C
  • Huge amounts of potential
  • Downstairs W/C
  • Planning permission for rear extension
  • Convenient location
  • Great family home
  • Conservatory
  • Plans submitted for side extension
  • Close to local amenities
  • Viewings advised

Share this property

Property Search

Share this property