3 Bedroom Detached For Sale   |   Boucher Road, Cheddleton, Staffordshire Moorlands, ST13 7JH   |   Offers in Region of £259,950

Virtual Tour

Key Features

  • EPC rated D
  • Loved family home
  • Well presented through out
  • Downstairs w/c
  • Good size rooms
  • Front and rear gardens
  • Garage
  • Sought after location
  • Close to local aminities
  • Viewing advised

Summary

Feeney estate agents are thrilled to bring to market this much loved family home situated in the sought after location of Cheddleton in the popular Staffordshire Moorlands. Boucher Road is a three bedroomed detached home perfect for any growing family. Internally of offer, a welcoming entrance hallway, with convenient W/C off, lounge with bay window before the kitchen dining room with a convenient archway onto the kitchen. The kitchen has fitted wall and base units whilst the dining room offers French doors opening out onto the rear patio. To the first floor there are three good size bedrooms all with carpet flooring and a stylish family bathroom with white suite. This home benefits from front and rear laid to lawns gardens, as well as a garage and ample off road parking for two cars. Boucher Road wont be on the market for long, so call today to book your early viewing.

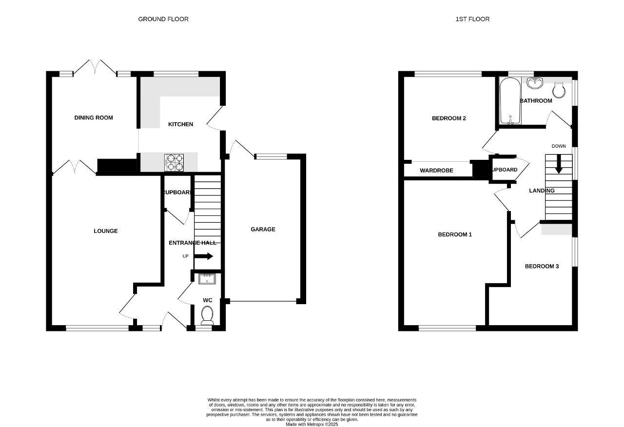
Ground Floor

Entrance Hall

Dorr and double glazed window to front elevation. Under stairs storage. LVT flooring and a wall mounted radiator.

Lounge

15' 4'' x 11' 1'' (4.7m x 3.4m) Double glazed bay window to front elevation. Carpet flooring, power points and a wall mounted radiator.

Dining Room

8' 2'' x 8' 10'' (2.5m x 2.7m) French doors to rear elevation and archway to kitchen. LVT flooring, power points and a wall mounted radiator.

Kitchen

8' 2'' x 8' 2'' (2.5m x 2.5m) Double glazed window to rear elevation. Roll top work surfaces with a sink, drainer and mixer tap. Tiled splash backs. Plumbing for a washing machine. LVT flooring, power points and a wall mounted radiator.

W/C

2' 7'' x 5' 6'' (0.8m x 1.7m) Double glazed frosted window to front elevation. Vanity hand wash basin with mixer tap and low level w/c. LVT flooring and a wall mounted radiator.

First Floor

First Floor Landing

Store cupboard. Carpet flooring.

Bedroom One

10' 9'' x 15' 8'' (3.3m x 4.8m) Double glazed bay window to front elevation. Carpet flooring, power points and a wall mounted radiator.

Bedroom Two

6' 6'' x 10' 5'' (2m x 3.2m) Double glazed window to front elevation. Carpet flooring, power points and a wall mounted radiator.

Bedroom Three

9' 6'' x 8' 10'' (2.9m x 2.7m) Double glazed window to rear elevation. Carpet flooring, power points and a wall mounted radiator.

Bathroom

7' 10'' x 5' 2'' (2.4m x 1.6m) Double glazed frosted windows to rear and side elevations. Vanity wash hand basin with low level w/c. Bath. Store cupboard. Spot lighting. Vinyl flooring and a heated towel rail.

Exterior

Exterior

To the rear, a laid to lawn, patio area, shrubbed boards and fence panelling.

Energy Efficiency

EPC Graph

Additional Information

For further information on this property please call 07387027568 or e-mail home@feeneyestateagents.co.uk

Contact Us

123 High Street, High Town, HH1 1HH

07387027568

home@feeneyestateagents.co.uk


Key Features

  • EPC rated D
  • Well presented through out
  • Good size rooms
  • Garage
  • Close to local aminities
  • Loved family home
  • Downstairs w/c
  • Front and rear gardens
  • Sought after location
  • Viewing advised

Share this property

Property Search

Share this property