2 Bedroom Town House For Sale   |   Leek Road, Shelton, Stoke On Trent, ST4 2BU   |   Offers in Excess of £150,000

Virtual Tour

Key Features

  • EPC rating E
  • Ideal starter home
  • Well presented throughout
  • Open plan lounge / kitchen
  • Stylish bathroom
  • Gated car port
  • Garage
  • Great commuter route
  • Convenient location
  • Viewing advised

Summary

Calling all first time buyers - feast your eyes on this gem! Situated in a prime location on a great commuter route in and out of the city, you will find Leek Road and this well presented home ready to be moved straight into. The modern open plan living is fantastic for entertaining and relaxing and offers natural lighting and dual aspect windows. Internally on offer, a welcoming entrance hall, lounge/diner with an electric fire and a stylish kitchen with a breakfast island. To the first floor there are two bedrooms, both with carpet flooring and a family bathroom with a white suite. The rear of the home offers a garage and gated car port perfect for off road parking. This home must be viewed to be fully appreciated, call today to book your early viewing.

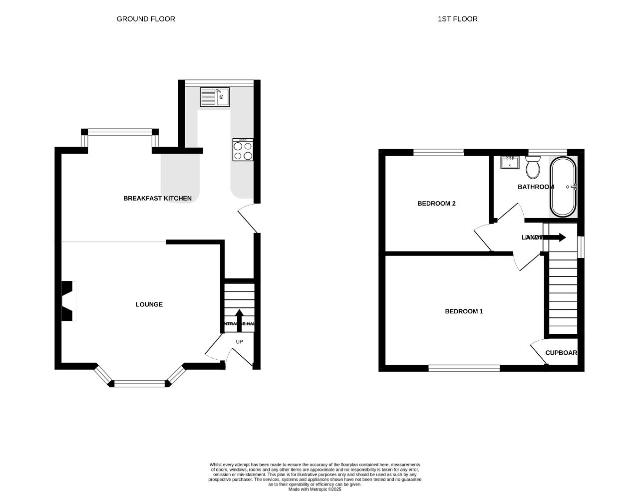
Ground Floor

Entrance Hall

Door to front elevation. Access to stairs. Carpet flooring and a wall mounted radiator.

Lounge / Diner

13' 5'' x 22' 7'' (4.1m x 6.9m) Double glazed bay window to front elevation and double glazed window to rear elevation. Electric fire and fire place. Carpet flooring, power points and two wall mounted radiators.

Kitchen

16' 8'' x 13' 5'' (5.1m x 4.1m) Door to side elevation. Open plan to lounge /diner. Roll top work surfaces with a sink, drainer and mixer tap. A range of matching wall and base units. Electric oven and hob with extractor fan. Integrated fridge/freezer. Plumbing for a washing machine. Breakfast island. Spot lighting. Under stairs storage. Tiled flooring, power points and a wall mounted radiator.

First Floor

First Floor Landing

Double glazed frosted window to side elevation. Loft access. Carpet flooring and power points.

Bedroom One

9' 6'' x 13' 8'' (2.9m x 4.2m) Double glazed window to front elevation. Store cupboard housing boiler. Carpet flooring, power points and a wall mounted radiator.

Bedroom Two

8' 10'' x 8' 6'' (2.7m x 2.6m) Double glazed window to rear elevation. Carpet flooring, power points and a wall mounted radiator.

Bathroom

5' 6'' x 7' 2'' (1.7m x 2.2m) Double glazed frosted window to rear elevation. Pedestal wash hand basin with low level w/c. Bath with shower to wall. Fully tiled walls. Vinyl flooring and a wall mounted radiator.

Exterior

Exterior

To the rear, a garage, paved patio and gated car port.

Energy Efficiency

EPC Graph

Additional Information

For further information on this property please call 07387027568 or e-mail home@feeneyestateagents.co.uk

Contact Us

123 High Street, High Town, HH1 1HH

07387027568

home@feeneyestateagents.co.uk


Key Features

  • EPC rating E
  • Well presented throughout
  • Stylish bathroom
  • Garage
  • Convenient location
  • Ideal starter home
  • Open plan lounge / kitchen
  • Gated car port
  • Great commuter route
  • Viewing advised

Share this property

Property Search

Share this property