3 Bedroom Semi detached bungalow For Sale   |   Moss Park Avenue, Werrington, Stoke on Trent, ST9 0EP   |   Offers in Region of £190,000

Virtual Tour

Key Features

  • EPC rating D
  • Extended to rear
  • Spacious lounge diner
  • Three bedrooms
  • Detached garage
  • Shower room
  • Off road parking
  • Sought after location
  • No onward chain
  • Viewings advised

Summary

Feeney estate agents are thrilled to bring to market this great opportunity to own a fantastic home situated in the most sort after locations of Werrington in the Staffordshire Moorlands. Moss Park Avenue is a delightful, three bedroom semi detached bungalow, offered for sale with no onward chain and must be viewed to be fully appreciated. Internally on offer, a welcoming entrance hall, spacious lounge diner, kitchen with an array of fitted units and a modern shower room. The inner hall offers access to all three bedrooms, all complete with carpet flooring. Benefitting from off road parking, detached garage and both front and rear laid to lawns, would more could you ask for? Call to day to secure your early viewing.

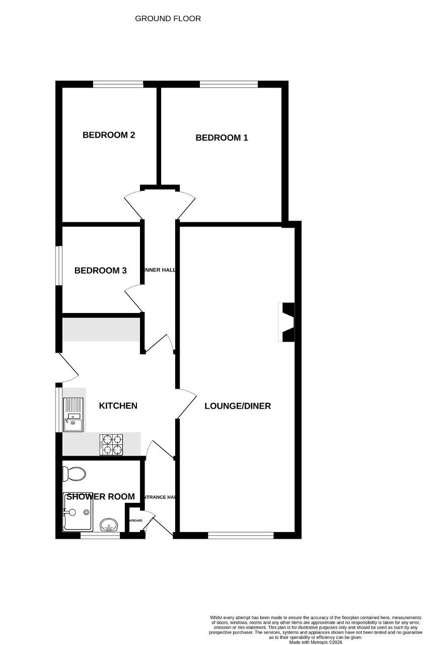
Ground Floor

Entrance Hall

Door to front elevation. Store cupboard. Tiled flooring and a wall mounted radiator.

Lounge

9' 10'' x 27' 2'' (3m x 8.3m) Double glazed window to front elevation. Carpet flooring, power points and two wall mounted radiators.

Kitchen

6' 6'' x 11' 9'' (2m x 3.6m) Door and double glazed window to side elevation. Roll top work surfaces with a sink, drainer and mixer tap. A range of matching wall and base units. Plumbing for a washing machine. Electric oven and four burner hob. Integrated dishwasher. Tiled flooring, power points and a wall mounted radiator.

Bedroom One

10' 5'' x 11' 5'' (3.2m x 3.5m) Double glazed window to rear elevation. Carpet flooring, power points and a wall mounted radiator.

Bedroom Two

8' 2'' x 11' 5'' (2.5m x 3.5m) Double glazed window to rear elevation. Carpet flooring, power points and a wall mounted radiator.

Bedroom Three

6' 6'' x 7' 2'' (2m x 2.2m) Double glazed window to side elevation. Carpet flooring, power points and a wall mounted radiator.

Bathroom

6' 6'' x 6' 2'' (2m x 1.9m) Double glazed frosted window to front elevation. Vanity wash hand basin with storage and low level w/c. Shower enclosure with waterfall shower and shower attachment. Spot lighting. Tiled flooring and a heated towel rail.

Exterior

Exterior

To the front, a laid to lawn and tarmac driveway. To the rear, a laid to lawn and detached garage.

Energy Efficiency

EPC Graph

Additional Information

For further information on this property please call 07387027568 or e-mail home@feeneyestateagents.co.uk

Contact Us

123 High Street, High Town, HH1 1HH

07387027568

home@feeneyestateagents.co.uk


Key Features

  • EPC rating D
  • Spacious lounge diner
  • Detached garage
  • Off road parking
  • No onward chain
  • Extended to rear
  • Three bedrooms
  • Shower room
  • Sought after location
  • Viewings advised

Share this property

Property Search

Share this property